(Números 17-19 y 21, anterior 13 y 13 duplicado)
|
|
La casa lució sobre su entrada una cadena, signo que recuerda la visita real de Juan I, lo que motivó que fuera conocida como casa de la Cadena22 .
Fue utilizada como posada al menos desde el siglo XVIII, ya que como tal aparece mencionada en el Catastro de Ensenada siendo por entonces el edificio propiedad de los sucesores de D. Francisco Sebastián Ordóñez Flores y Godínez, I marqués de la Roqueta (1662), natural de Salamanca y almirante en Nueva España23.
Como posada perduró hasta el derribo del edificio y no siempre lució como lugar limpio y saludable, era "una de esas amplias y viejas posadas, donde los zafios arrieros riñen y los sanguíneos gañanes se refocilan con la complaciente moza del mesón, rijosa y legañuda; es una de estas posadas castizas, reunión de picaros y de tratantes"24.
El 24 de septiembre de 1806 la finca fue adquirida por Antonio Rascón y Lozano, II vizconde de Revilla de Barajas, pasando posteriormente a propiedad de su hija doña Jacoba Ramona Rascón y Cornejo, III vizcondesa de Revilla de Barajas, casada con Rafael Bermúdez de Castro Gómez, que a su vez la cede a su hijo Juan Bermúdez de Castro y Rascón, IV vizconde de Revilla.
En los primeros años del siglo XX don Luis Maldonado y Fernández Ocampo adquirió a don Juan Bermúdez de Castro la casa en la calle de Toro 38 (hoy 22) que había sido de la familia de los Vizcondes de Revilla al menos desde principios del siglo XVIII. Adquirió además la casa de la Cadena, amenazada ya de desaparición, y, en sociedad con D. Cándido Torres, el amplio jardín que fue del hotel de las Cuatro Estaciones.
El peligro de desaparición de la casa se cernió sobre ella desde el mismo momento en que la idea del ensanchamiento de la calle del Pozo Amarillo y su continuación por la calle de la Guerra se plasmara en los planos de alineación de la zona del arquitecto municipal D. José Gallego presentado en noviembre de 1889. Sin embargo su derribo se demoraría más de 40 años.
En agosto de 1911 la comisión de urbanismo municipal informó de la tasación para la expropiación parcial, que incluía la primera crujía, de la casa de la Cadena por un importaba 17.800 pesetas, el pleno municipal desecho en octubre tal posibilidad.
Tras el fallecimiento de D. Luis Maldonado en 1926, la familia intentó en vano la venta del inmueble. No fue hasta noviembre de 1930 cuando finalmente es aprobado el expediente de expropiación parcial del inmueble y en junio de 1931, tras hacerse público el nuevo proyecto de alineación oficial, en el que se habían introducido algunas modificaciones, se concede licencia de demolición del edificio a D. Francisco y Dª Joaquina Maldonado de Guevara y Andrés hijos de D. Luis. El solar restante de unos 400 m2 fue puesto en venta y adquirido por el médico y hotelero D. Francisco Diego en 1934.
D. Francisco Diego y Diego nació en Calvarrasa de Abajo el 17 de septiembre de 1877, además de ejercer la medicina se dedicó a diversos negocios. Fue accionista de Unión popular, empresa arrendataria de la plaza de toros de la Glorieta, accionista de los Baños de Retortillo y copropietario del Hotel Comercio junto con D. Agustín Hernández. Fue aficionado a los galgos perteneciendo a algunas asociaciones y políticamente era republicano con militancia en el partido Acción Republicana que fundara D. Manuel Azaña.
En 1931 el Estado Español adquirió a los hijos de D. Francisco Núñez el solar y edificio en la plaza de los Bandos donde se ubicaba el hotel Comercio, para la construcción de la sede del banco de España en Salamanca. Tal vez, la inminencia de tener que abandonar el edificio y la necesidad de trasladar el negocio pudo haber motivado la compra del solar y edificio junto a la posada de la Cadena y que debía compartir número con la misma. Probablemente fue el Dr. Diego el último propietario con quien se llegó a un acuerdo de expropiación parcial, lo cual ocurrió tras el verano de 1932. El viejo proyecto de ensanche y ampliación de la calle del Pozo Amarillo estaba a punto de culminarse.
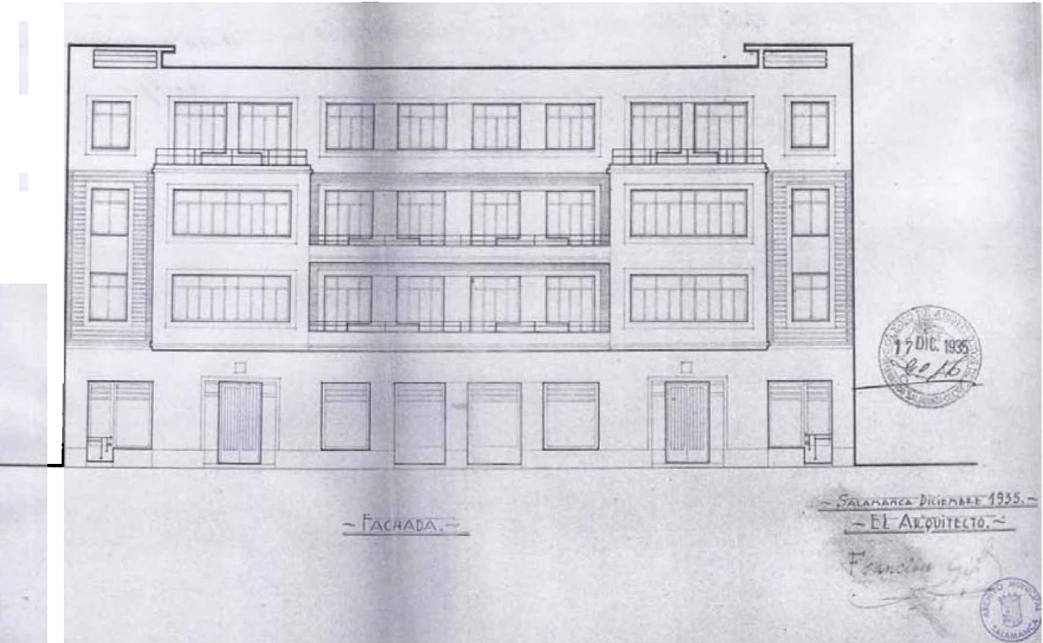
Sobre los dos solares D. Francisco Diego mandó diseñar al arquitecto D. Francisco Gil el futuro hotel Comercio, así lo testifica la prensa25 y un plano de la fachada del edificio con el rótulo HOTEL COMERCIO26.
| Fachada del Hotel Comercio de Francisco Gil, en Arquitectura y urbanismo en Salamanca (1890-1939) de José Ignacio Díez Elcuaz |
Sin embargo, parece que D. Francisco Diego tuvo dudas sobre la viabilidad del proyecto de hotel y abandonó la idea en junio de 193427. Si se considera este dato, se concluye que el primer proyecto de Francisco Gil debería ser del año 1934 y no de 1935 como habitualmente se mantiene. Consta, sin embargo, que el primer proyecto presentado en el Ayuntamiento para la solicitud de licencia de obra del edificio fue del 6 de junio de 193528, y que esta fue la razón por la que se rechazó la solicitud posterior de acoger el edificio a la ley Salmón promulgada el 25 de junio de 1935, sin carácter retroactivo. El escollo parece que fue salvado planteando un nuevo uso para el edificio y un nuevo proyecto con el beneplácito del arquitecto municipal D. Ricardo Pérez que fue presentado y aprobado en diciembre de 1935 por lo que pudo acogerse a los beneficios de la Ley de lucha contra el paro de D. Federico Salmón.
| Fachada del edificio de Francisco Diego por Francisco Gil, en El arquitecto Francisco Gil González (1905-1962) de Sara Núñez Izquierdo |
El edificio de estilo racionalista, de cuatro plantas y dividido en dos bloques, presenta en su fachada dos balcones corridos, con barandillas metálicas tubulares, situados entre dos miradores de fábrica de aristas redondeadas. Estos miradores no alcanzan la altura del edificio convirtiéndose en balcones en la última planta y tampoco están situados en los extremos del edificio. Las grandes ventanas apaisadas contribuyen a remarcar la horizontalidad del conjunto en el que los revocos claros alternan con el ladrillo cara vista. Entre al proyecto inicial y el edificio construido, que ha llegado a nuestros días, se observan diferencias en el bajo, fundamentalmente en las puertas de entrada a ambos bloques que culminan con un arco de medio punto solución poco habitual en el racionalismo.
En el proyecto de hotel, la planta baja albergaba las dependencias del mismo (recepción, cocinas restaurante,..) además de dos locales comerciales, mientras los pisos superiores acogían las habitaciones del hotel y dos pisos de alquiler por planta. El diseño final dispuso en total de 16 viviendas y en el bajo 4 locales comerciales.
En enero de 1934 cuando todavía se encontraba en venta el solar de la derribada posada de la Cadena, el señor Vázquez de Parga presentó en el Ayuntamiento una moción para la apertura de dos nuevas calles29. Una de ellas se abriría para poner en comunicación la calle Doctor Riesco (Toro) con la del Pozo Amarillo una especie de prolongación de la calle de las Especias. La compra del solar de la posada de la Cadena por D. Francisco Diego en mayo de 1934 pareció descartar la nueva calle de forma definitiva pero la retirada del proyecto de hotel generó nuevas expectativas para la nueva calle que finalmente fue rechazada por costosa y de poco beneficio público.
El edificio estaba muy avanzado al comenzar la Guerra Civil, así lo atestigua una fotografía publicada en El Adelanto del 12 de junio de 1936.
| Estado del edificio en El Adelanto 12 de junio de 1936. Fotografía Almaraz |
Pero el cambio de régimen fue nefasto para D. Francisco Diego que pagó con la cárcel su militancia política republicana. Fue sometido a Consejo Sumarísimo de Guerra el 19 de diciembre de 1936 y condenado el 2 de enero de 1937, en concepto de responsabilidad civil y como indemnización al Estado Español por los enormes daños sufridos, al pago de una cantidad igual a la que ascendía su fortuna personal.
D. Francisco Diego debió permanecer en prisión durante la Guerra Civil hasta su liberación y en 1942 reanudó su consulta médica en el propio edificio nº13 del Pozo Amarillo, donde estuvo hasta su fallecimiento el 9 de enero de 1945 a los 67 años de edad.
Los edificios fueron inmediatamente ocupados por el nuevo Estado que utilizó sus dependencias con la Delegación Provincial de la Sección Femenina que por entonces tenía encomendado el Auxilio Social, habilitando en el edificio un comedor infantil. Albergó también la Delegación de Propaganda de la Falange y el Juzgado Instructor de Responsabilidades Políticas.
La Sección Femenina abandonó el edificio en septiembre de 1938 para instalarse en el nº 8 de la avenida de Mirat y poco a poco el edificio se fue reintegrando a la vida civil.
Ya en 1938 el restaurante Imperial ocupó uno de los locales, trasladándose en 1939 a la plaza del Liceo. En 1939 se instaló casa ACHE, bicicletas y accesorios, el restaurante Chapado y el bar-restaurante La Mezquita confirmando así la larga tradición hostelera del edificio. Más tarde en 1942 se abre el restaurante Lar Gallego, de larga duración, Con el tiempo llegaron otros establecimientos hasta llegar a los últimos años con el restaurante Roque, el restaurante Comercio, restaurante Isidro y el más joven La Mejillonera D’Victor.
22 La
Posada de la Cadena de José
María Hernández Pérez, 2020
23 Una falsificación nobiliaria
más: la del título de Marqués de la Roqueta, Javier Gómez de Olea y
Bustinza, Académico de Número. Boletín de la Real Academia Matritense AÑO XVI- NÚMERO 61 4T-2006
25 El Adelanto, 29 de mayo
de 1934.
27 El Adelanto, 24 de junio
de 1934

